178 Pinecrest Dr, Delaware, OH 43015
Toggle Navigation
Images
Videos
Floor Plans
3D Tour
Map
178 Pinecrest Dr
Delaware, OH 43015
Scroll to Content
Images
Slideshow
Photo Grid
Hide
Previous
Next
Show more
Videos
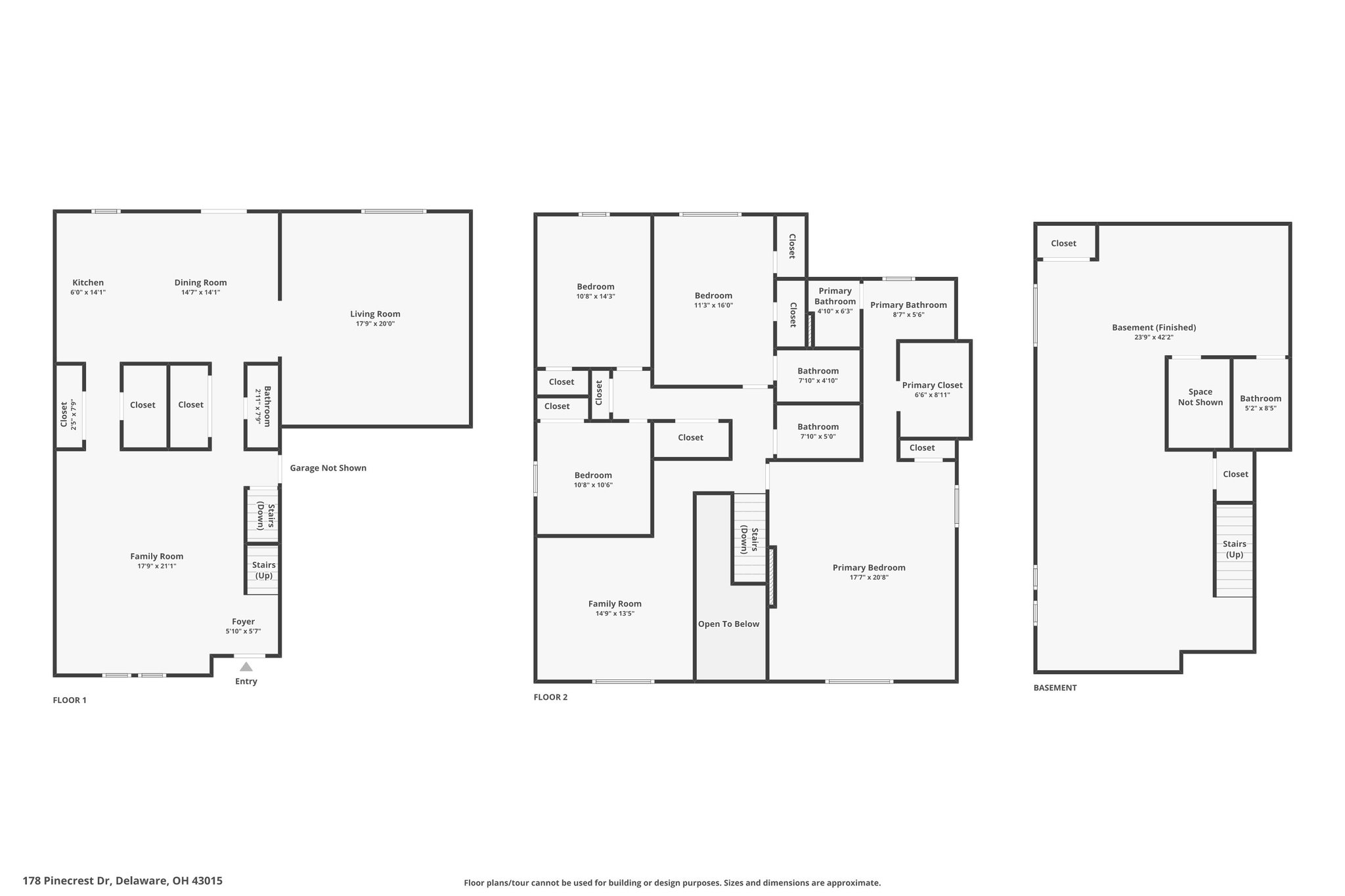
Floor Plans
Slideshow
Photo Grid
Hide
Previous
Next
3D Tour