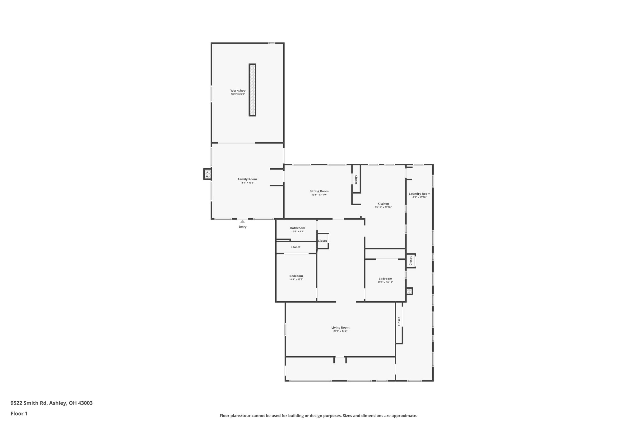
9522 Smith Rd, Ashley, OH 43003
Toggle Navigation
Images
Floor Plans
3D Tour
Map
9522 Smith Rd
Ashley, OH 43003
Scroll to Content
Images
Slideshow
Photo Grid
Hide
Previous
Next
Show more
Floor Plans
Slideshow
Photo Grid
Hide
Previous
Next
3D Tour