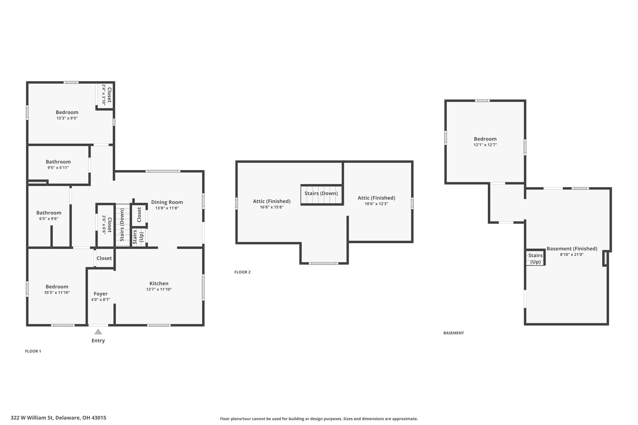
322 W William St, Delaware, OH 43015
Toggle Navigation
Images
Floor Plans
3D Tour
Map
322 W William St
Delaware, OH 43015
Scroll to Content
Images
Slideshow
Photo Grid
Hide
Previous
Next
Show more
Floor Plans
Slideshow
Photo Grid
Hide
Previous
Next
3D Tour